IMPORTANT PRICING NOTICE ⚠️


Market prices vary. For a whole house renovation, check our packages or request a custom quote. It is best to prepare at least 10 percent of your property value. For example, if your home is worth $400,000, plan around $40,000 to cover all major works and avoid overspending.


Get Pricing Get Pricing

How long does it take to completely renovate a house?

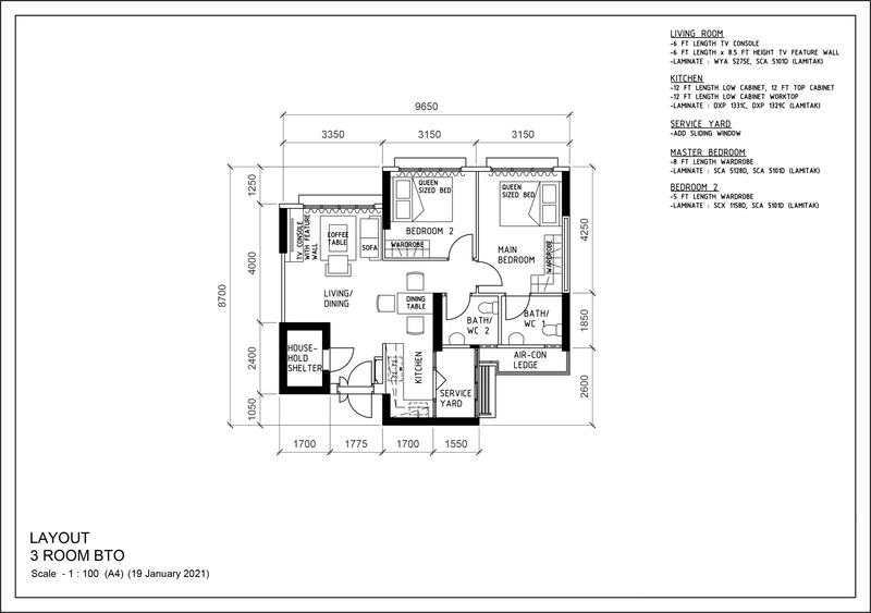
Renovation-contractor-singapore-3room-bto-layout-your-ideal-contractor-blog
RCS – Renovation Contractor Singapore
HDB Licensed • BCA Registered • bizSAFE Level 3 • PMI Member

A full kitchen remodelling can take up to 4 weeks, while a whole house renovation usually takes up to 6 weeks. This is considering that all works can be carried out smoothly and no delays are faced from owner, contractor or suppliers.

Considering now, we are in a pandemic. And labour cannot move in and out of the country freely. Timeline for whole house renovation has gone up to 8-10 weeks.

Do read through our article on “when is the best time to plan for you renovation works”, so that you will be better informed going into the renovation process.

Contact RCS Team
RCS – Renovation Contractor Singapore
HDB Licensed • BCA Registered • bizSAFE Level 3 • PMI Member
 IMPORTANT PRICING NOTICE ⚠️

Market prices fluctuate. Check our official packages for real-time pricing or reach out for custom quotes designed around your needs.

Get Pricing Get Pricing

What Our Customers Say

"

Adi was referred to us by his past colleague. He reached out to RCS and requested a consultation at his place for his 2 toilets revamp. We discussed what his main concern was and what he and his family were looking to achieve from their toilet renovation other than a beautiful and functional toilet. We addressed their concern for the aesthetics, and also the maintenance and upkeeping in future. They were very patient throughout the renovation while staying inside. And the end result gave us satisfaction in delivering the project. While their review says it all giving us the validation and fulfillment we need to continue on this mission. Reach out to us if you'd like to see the results of his toilet renovation.

Click for more
"

We met Afiq & wife at their parents place in Bukit Batok. From the first appointment to the handover, they were a very nice couple to work with. Afiq even recommended his sister which we renovated their place in Punggol Way as well.

Click for more
"

We renovated for Aisyah her family home in early 2020. Since then, we've done a few of her friends's home, her mum's place and also her auntie's place. Grateful that we've been given the chance to keep serving her family & friends.

Click for more
"

Trusted contractor And very reasonable price for my home renovation upgrade. Puan Ana also did kitchen flooring overlay, whole house vinyl and also painting.

Click for more
"

Very decisive couple. Huiying contacted us a few days before going for their holiday. She discovered our 2 toilets overlay package online and found that it was very competitive. We quickly send her the quote and she chose the tiles while choosing to opt for expoxy grouting. We did their place in record time eventhough epoxy grouting needed more time to lay. Happy that we've delivered over their expectations.

Click for more
"

Mas had been enquiring for a few months before deciding to proceed with their renovation. The main works were done to the kitchen & 2 toilets. We faced some hiccups with the sink supplier, although managed to pull through with the timeline. Very happy to have been able to serve them for their long awaited update, as they were very careful on who they picked to renovate their home. Making it a very fulfilling years of wait.

Click for more
×

Your product grid title

Browse All